寿宁县南阳镇溪南村总体规划及美丽乡村规划

项目简介

项目地点:福建省宁德市

总规划面积:8.63公顷

项目概述

三农问题是关系国计民生的重要问题,自2003年以来,中央一号文件都是关于农村、农业、农民的三农问题;福建省出台了相关的美丽乡村政策,根据《福建省人民政府关于实施宜居环境建设行动计划的通知》部署,福建省实施了“千村整治、百村示范”工程,按照“布局美、环境美、建筑美、生活美”的四美要求,围绕“三整治、三提升”建设标准和“五清楚”的原则进行。

本次规划的溪南村位于寿宁县南阳镇,处于城乡结合部,为美丽乡村建设重点村,村域用地面积4平方公里,村庄建设用地8.63公顷。

项目亮点:

规划目标:依托“山环水绕”的优势,打造“醉美溪南”。整治目标:建设“布局美、环境美、建筑美、生活美”的“四美”溪南。

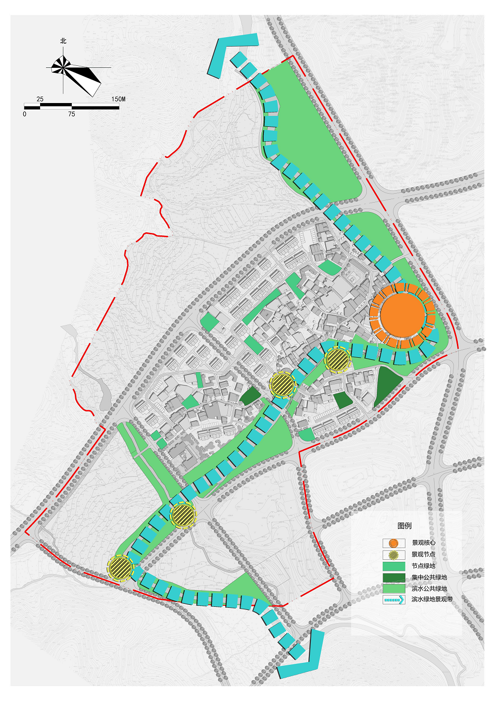
总体规划总体规划将村域共分为三个片区:

(1)村庄建设发展区为溪南村居民的村庄建设用地,规划完善住房建设及各类配套设施,支撑村域经济社会发展;(2)休闲旅游观光区规划为区域内生态休闲观光体验区,让游客参与农业劳作,辨识五谷,亲近自然,成为溪南村的特色区域;(3)林下经济种植区规划发展林下种植,提高溪南村民的经济收入,充分利用溪南山体林地多的特点,进行林下种植。

美丽乡村规划:

(1)结构:村庄建设发展区规划形成“一核、一带、五片、多点”—— 一核:以村委、村民文化活动公园所形成的公共核心;一带:沿溪南村傍村而过的溪南溪所形成的滨水绿地景观带;五片:①依据建设情况划分成的北部村庄居住片区;②中部村庄居住片区;③南部村庄居住片区与村;④西南部城市居住片区;⑤城市公共服务片区

(2)层次:美丽乡村规划分为重点整治和一般整治——重点整治:层次为三大主要节点区域。主要针对节点范围内的建筑、设施、公共空间进行整治;一般整治:层面针对溪南村规划范围内重点整治区域以外的地域,进行旧房裸房、垃圾点、污水、道路、绿化整治。4.高效综合交通系统规划。

项目价值:

通过整治工程,达到了美丽村庄工作的既定目标,提升了溪南村的村庄品质,满足了村民对幸福生活的要求。

Produced By CMS 网站群内容管理系统 publishdate:2025-06-04 11:41:33